![[ title]](http://www.turistickelisty.sportovnilisty.cz/img/_antialias__antialias_a18c1f6d-d328-4ac5-b67e-e2ad68e5c3fa_cad746bc52854aad2ee473f25d57d165_fc837debfa4543b32ee09aef3dd465c9.jpg)

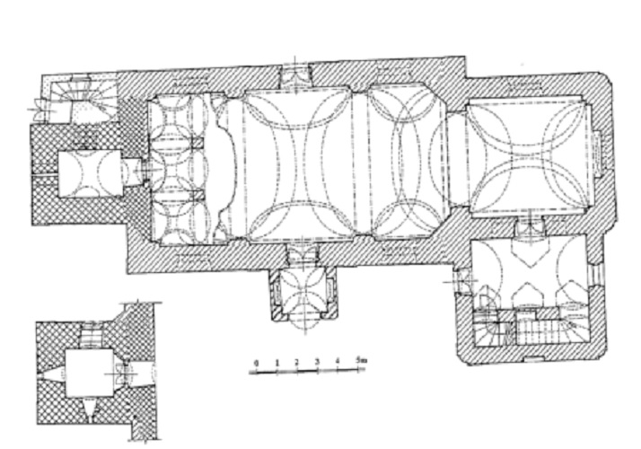
Kostel sv.Bartoloměje v Solopyskách byl původně gotický, zbarokizován byl v letech 1750—51 Antonínem Palliardim na náklad Václava Vraždy z Kunvaldu. Kostel je obdélný, jednolodní, s pravoúhlým presbytářem se sakristií a oratoří po jižní straně, s jižní otevřenou předsíní a západní hranolovou věží. Okna jsou půlkruhová, na věži, členěné lizénami jsou kamenné znaky Mirků ze Solopysk z roku 1490.

Interiér kostela je sklenut plackami na pilastrech, nástropní fresky z legendy sv.Bartoloměje (od J.a V. Kramolínů z roku 1752); nad triumfálním obloukem jsou znaky Voračických z Paběnic a Vraždů z Kunvaldu.

Zařízení kostela je pseudorenesanční z 2. poloviny 19. století, kazatelna je rokoková. Za kostelem je kaple Kalvárie z poloviny. 18. století, ve tvaru edikuly lemované pilastry, ve výklenku původní poničené sousoší Kalvárie, pod kaplí je hrobka Vraždů z Kunvaldu.

Významným předělem v historii obce se stal rok 1738, kdy vedle Červeného Hrádku koupil Jan Václav st. z Kunvaldu i zdejší ves. Obec se tak dostala pod vládu Vraždy z Kunvaldu. Na popud Václava Vraždy z Kunvaldu byl v letech 1750 – 1751 místní gotický kostel sv. Bartoloměje barokně přestavován. Vybudována byla i rodinná hrobka baronů Vraždů podle návrhu Antonína Pilliariho. Až do roku 1868 fungoval okolo kostela i hřbitov.
Podle : Kol., Umělecké památky Čech P/Š, 3.svazek



 Email
 Tisk





