![[ title]](http://www.turistickelisty.sportovnilisty.cz/img/_antialias__antialias_483c5d8b-b7c6-4da3-a28a-41d07a3f0e54_d4e795c875b817af55f85dbffbe2dddc_676e4786a15c7b72e791b73fd66c800d.jpg)

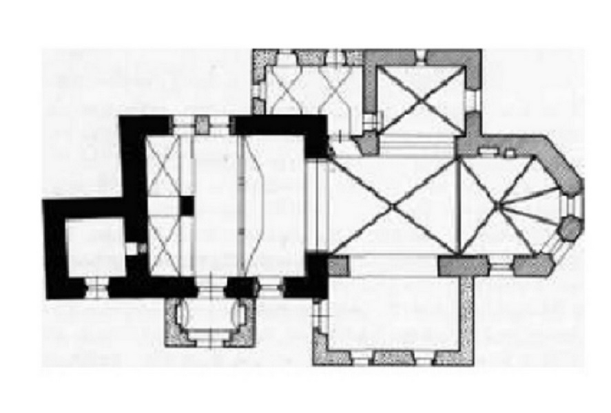
Kostel je jednolodní s krátkou lodí, dlouhým pětiboce uzavřeným presbytářem s kaplí Jana Nepomuckého na severní a kaplí Panny Marie na jižní straně, se sakristií na severní straně lodi, předsíňkou po jižní straně lodi a s věží před jihozápadním nárožím. Ve věži je úzké lomené a úzké trojlisté okénko, na boku lodi hrotitý portál, profilovaný hmotným hruškovcem a výžlabky, vedle něho v koutě předsíňky vezděná kropenka, zdobená kružbovými motivy, na severní straně kaple sv. Jana Nepomuckého je lomené okno.

Presbytář zaklenut jedním polem na délku položené křížové žebrové klenby a kápěmi závěru, žebra jsou o profilu hruškovce, sbíhající nízko k podlaží, končí ostruhovým podseknutím. Na klenbě závěru jsou malby andělů z 1. poloviny 15. století. Na severní straně presbytáře sedlový profilovaný výklenek sanktuáře s trojbokým vimperkem s rostlinným dekorem, završený fialou v podobě vížky s okénky, s pův. mřížkou; na již. straně presbyt. sedile završené třemi trojlisty v pravoúhlém rámování. Kaple sv. Jana Nepomuckého, otevřená do presbytáře širokým hrotitým obloukem se zkoseným ostěním, zaklenuta jedním polem křížové klenby téhož typu jako v presbytáři na východní a západní stěně a na stropě figurální nástěnné malby pašijového cyklu z 1. poloviny 15. století, v západní stěně kaple převýšený sedlový portálek vedoucí do sakristie po severní straně lodi, zaklenuté valeně s výsečemi. Kaple Panny Marie je plochostropá, široký hrotitý triumfální oblouk s kamenným zkoseným ostěním; plochostropá loď s emporou na pilíři v západní části.

Zařízení je z 1.poloviny 18. století, upravané v 19. století, zčásti M. Kubaštou roku 1849: sochařsky , barokkní sloupový hlavní oltář sv. Mikuláše s novými plastikami z 19. století. Oltář Panny Marie ve stejnojmenné kapli je pseudobarokní z konce 19. století, s novodobou sochou; podobný sochařský , oltář sv. Linharta na severní straně lodi a kazatelna s figurálními reliéfy.
Podle : Kol., Umělecké památky Čech K/O, 2.svazek



Email
Tisk





